ID CP2995859

Casă premium complet utilata 5 camere 3 bai teren 427 mp în Cisnădie

ID CP2995859

290,000 € (negociabil)

Casă / Vilă cu 5 camere de vânzare
Sud, Cisnadie
120 mp
2025

Agenția imobiliară Azura Estate vă propune spre vânzare o casă individuală premium, construcție nouă (2025), cu o suprafață utilă de 120 mp, amplasată pe un teren de 427 mp, situată în Cisnădie, într-o zonă liniștită, aproape de centru, școli, grădinițe și principalele puncte de interes.

Localitatea este apreciată pentru atmosfera relaxată și accesul rapid către Sibiu, Cisnadioara, parc, lac, si agrement Magura. Proprietatea oferă confort, intimitate și o curte generoasă de 337 mp, fiind ideală atât pentru locuit, cât și pentru investiție. În apropiere se regăsesc toate facilitățile necesare, într-un mediu sigur și prietenos.

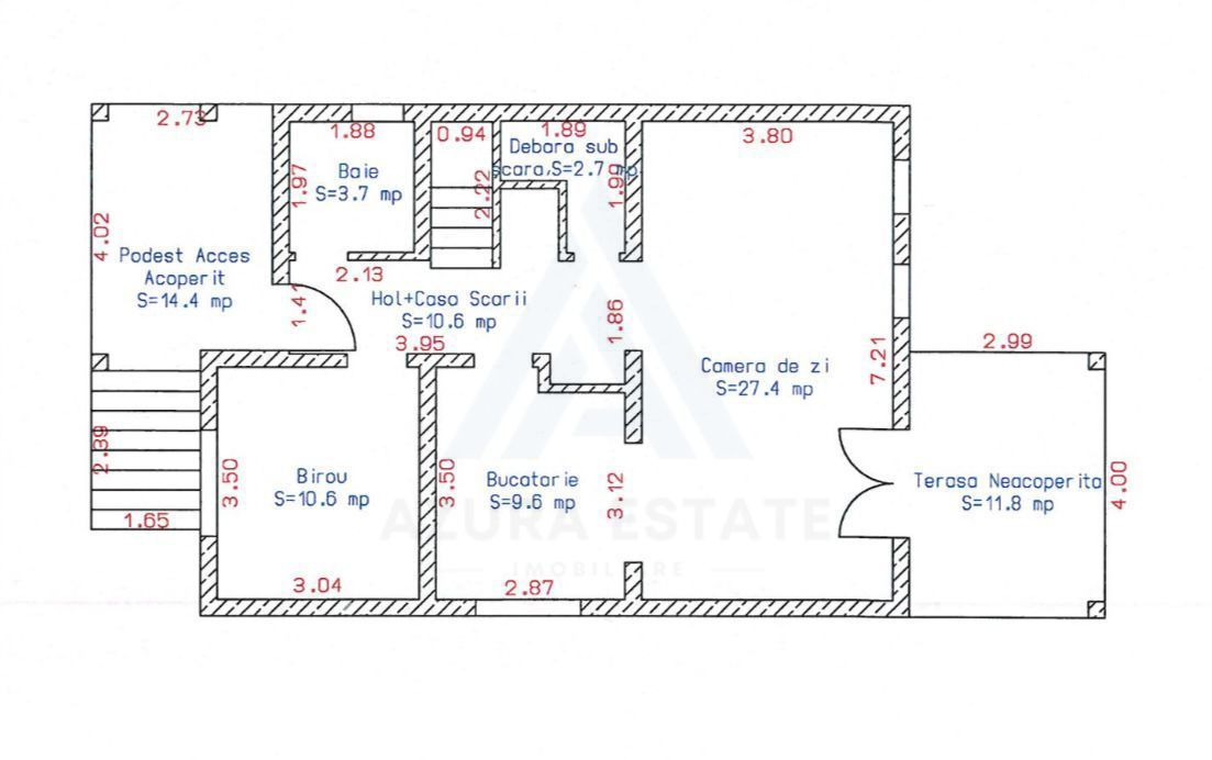
Caracteristici si compartimentare:

Parter: 64.6mp

Acces acoperit 14.4mp

Living spațios cu zonă de dining 27.4mp și ieșire pe terasă 11.8mp

Bucătărie open-space 9.6mp– cu posibilitate de închidere

Dormitor/Birou 10.6mp

Baie 3.7mp

Debara sub scară 2.7mp

Hol de acces + casa scării 10.6mp

Etaj 62.2 mp

Dormitor matrimonial cu dressing 13.3mp

2 dormitoare 13.3mp + 12.8mp

2 băi 4.2mp + 5.1mp

Hol + casa scării 7.1mp

Balcon 4.2 mp

Hol cu spatii pentru depozitare 2.2mp

Alte beneficii:

Casă complet mobilată și utilată, exact ca în fotografii

Centrală termică pe gaz

Toate utilitățile racordate

Izolație exterioară

Pod izolat

Pentru mai multe detalii și programarea unei vizionări, nu ezitați să ne contactați – această locuință chiar merită văzută!

Citește mai mult

  • Număr camere
    5
  • Dormitoare
    4
  • Număr bucătării
    1
  • Număr băi
    3
  • Geam la baie
    Da
  • Număr balcoane
    1
  • Disponibilitate
    Imediat
  • Tip casă
    Individual
  • Stare interior
    Finisat modern
  • Anul finisării
    2025
  • Suprafață utilă
    120 mp
  • Suprafață construită
    144 mp
  • Suprafață construită la sol (Amprentă)
    90.0 mp
  • Suprafață teren
    427 mp
  • Suprafață curte liberă
    337 mp
  • Suprafață terasă
    11.8 mp
  • Deschidere
    15 m
  • Acoperiș
    Țiglă
  • Stadiu construcție
    Finalizată
  • An construcție
    2025
  • Construcție nouă
    Da
  • Tip construcție
    Cărămidă
  • Număr etaje clădire
    1
  • Are pod
    Da

Facilități

Acoperiș
Apă
Apometre
Aragaz
Bucătărie închisă
Bucătărie mobilată
Bucătărie utilată
Cadă
Canalizare
Centrală imobil
Contor căldură
Contor electric
Contor gaz
Curent
Curte
Dressing
Frigider
Gaz
Geamuri termopan
Glet
Gresie
Hotă
Iluminat stradal
Încălzire prin pardoseală
Internet
Izolație exterioară
Linoleum
Mașină de spălat rufe
Mobilat parțial
Parcare deschisă
Parchet
Senzor de fum
Străzi asfaltate
Ușă intrare metal
Uși interior MDF
Var
Vopsea lavabilă
Stefania Bunescu - Azura Estate
Stefania Bunescu

0753469794


Solicită chiar acum o vizionare
Nume
Telefon
Email
Sună acum Solicită vizionare
Necesare:

Site-ul nu poate funcționa corect fără aceste cookie-uri. Vezi cookie-urile

Statistică:

Strângem statistici anonime despre voi, vizitatorii unici, pentru a vă îmbunătăți experiența dumneavoastră. Vezi cookie-urile

Marketing:

Pentru a ne promova mai eficient serviciile noastre, folosim cookies pentru a vă identifica și a vă oferi proprietăți și servicii personalizate. Vezi cookie-urile

Acest site folosește cookies, află detalii. Alege ce tipuri de cookies dorești să permitem: